THE PADDINGTON

Icon to represent bedrooms 4 Beds
Icon to represent bathrooms 2 Bath
Icon to represent car parking spaced 2 Car

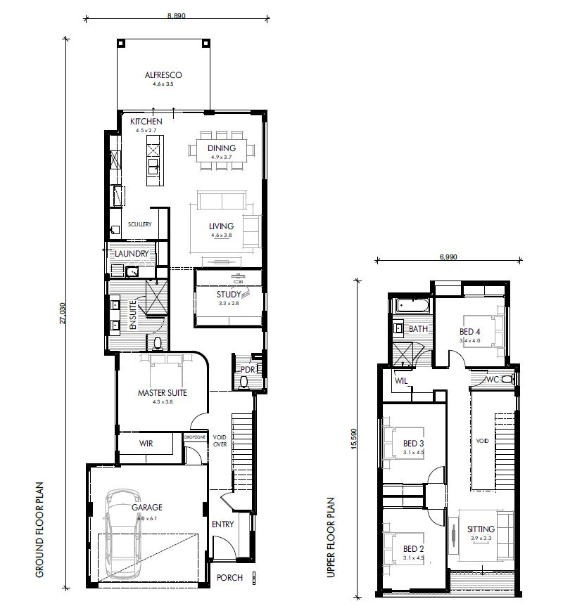
The Paddington encapsulates the future of residential design, where a narrow block can accommodate a spacious, modern home without any sacrifice. Occupying just a 10m frontage, The Paddington encompasses four bedrooms, two bathrooms and a free flowing kitchen, dining and living room with sweeping views to the outdoor entertaining area. With ultra-premium specifications as standard and the freedom to select options that best reflect your individual style, The Paddington’s impressive two storey void at entry will instil a sense of grandeur from the minute you step through the door.

*Images shown for illustrative purposes only. Speak to a Building and Design Consultant for more information.

Enquire

Website

By submitting this form, you acknowledge that you have signed up for updates, have read the Privacy and Data Collection Statement and that you consent to the use and disclosure of your personal information set out in that statement.

This site is protected by reCAPTCHA and the Google Privacy Policy and Terms of Service apply.

This is an error message
Thank you! Enquiry submitted successfully.

Floorplans and Specifications

Floorplan icon Download Floorplan

Ground Floor

Upper Floor

Your choice of facade

The Paddington | Designer

The Paddington | Modern